| Prijs | € 385.000,- k.k. |
| Type object | Woonhuis, eengezinswoning, hoekwoning |
| Perceeloppervlakte | 260 m² |
| Woonoppervlakte | 125 m² |
| Aanvaarding | In overleg |
| Status | Verkocht onder voorbehoud |
Welkom op Jagerstraat 26. Deze fijne hoekwoning is perfect voor starters, doorstromers en gezinnen die op zoek zijn naar ruimte en een fijne plek om thuis te komen. De woning is gelegen in een rustige woonomgeving nabij een groenvoorziening en de dagelijkse voorzieningen. Met een woonoppervlakte van 125 m² biedt deze woning voldoende ruimte voor het hele gezin. De fijne woonkamer met open keuken, de tuinkamer met mooi tuincontact en de 4 slaapkamers en de badkamer op de verdieping bieden genoeg ruimte voor iedereen. De twee kelderruimtes zorgen voor extra mogelijkheden en bergruimte. De garage en de handige berging naast de woning bieden genoeg plek voor stalling en opslag van spullen maar zijn ook zeer geschikt voor de uitoefening van een hobby. Het perceel heeft een oppervlakte van 260 m², waarvan een groot gedeelte bestemd is als achtertuin. Hier kun je volop genieten van het buitenleven onder een van de twee overkappingen en ook heerlijk ontspannen in de zon. De woning is goed geïsoleerd, voorzien van zonnepanelen en heeft energielabel A. Kortom, een fijne en ruime woning waar het goed wonen is!
Begane grond: De entree geeft toegang tot de voordeur en de hal. Vanuit de hal met tegelvloer, meterkast en trap naar de 1e verdieping zijn het toilet en de keuken bereikbaar. De open keuken met tegelvloer is voorzien van een moderne keukenopstelling met apparatuur (inductiekookplaat, afzuigkap, vaatwasser, oven, combimagnetron en koelkast met biofresh) en biedt voldoende werk- en kastruimte. Een loopdeur geeft toegang tot de overkapping en de tuin. De fijne en lichte woonkamer (ca. 26 m²) is voorzien van een tegelvloer en een schuifpui naar de tuinkamer. De aangebouwde tuinkamer (ca. 13 m²) is voorzien van een laminaatvloer, heeft veel lichtinval en een schuifpui naar de tuin. De hal, woonkamer en keuken zijn voorzien van vloerverwarming en in de keuken hangt een airco.
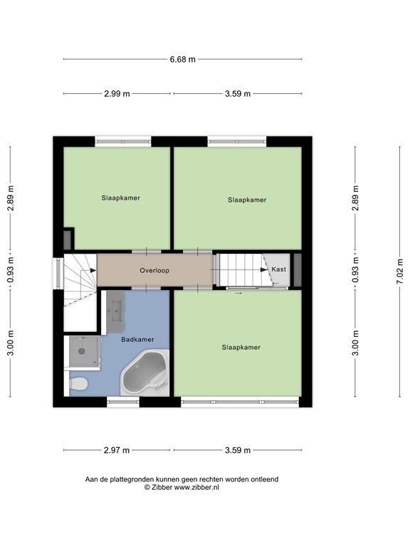
1e verdieping: Op de verdieping bevinden zich de overloop, 3 slaapkamers en de badkamer. De overloop en de slaapkamers zijn voorzien van een doorlopende laminaatvloer. De slaapkamer zijn respectievelijk ca. 11, 10 en 8,5 m² groot. De moderne badkamer is voorzien van een ligbad, douche, wandcloset, een wastafel met wandmeubel en een designradiator.
2e verdieping: Middels een vaste trap is de tweede verdieping bereikbaar. Hier bevindt zich de 4e slaapkamer (ca. 16 m²) met een eigen wastafel voorzien van warm- en koudwater. Deze ruimte is afgewerkt met een laminaatvloer, een grote dakkapel, een airco en praktische bergkasten.
Kelder: De kelder is voorzien van een tegelvloer en verdeeld in twee ruimtes van ca. 8 en ca. 12 m². In de eerste kelderruimte bevinden zich de witgoedaansluitingen. De tweede kelderruimte biedt tal van mogelijkheden voor bijvoorbeeld werk-, of hobbyruimte of mancave maar en kan worden gebruikt als provisie- en opslagruimte.
Perceel: De woning is gelegen op een fijn hoekperceel met aan de achterzijde de oprit met toegang tot de garage. Er is voldoende parkeergelegenheid aanwezig. De garage (ca. 17 m²) en de berging (ca. 17 m²) naast de woning bieden voldoende mogelijkheden voor opslag en voor hobby’s. De tuin is geheel omheind, heeft een prima bezonning en is voorzien van een terras, twee overkappingen waarvan één afsluitbaar is met zeilen, gazon en beplanting. De tuin is achterom bereikbaar middels de een poort en via de garage.
Algemeen: Deze fijne hoekwoning is oorspronkelijk gebouwd in 1964 en is in de loop der jaren aan- en verbouwd. De woning is gelegen in een rustige en kindvriendelijke woonomgeving nabij een groenvoorziening en nabij de dagelijkse voorzieningen. De woning is goed onderhouden en is voorzien van vloer-, spouwmuur- en dakisolatie, HR++ beglazing, rolluiken, airco’s, een HR combiketel (december 2023), 18 zonnepanelen en heeft energielabel A. Het woonoppervlak bedraagt ca. 125 m², overige inpandige ruimte ca. 24 m², gebouw gebonden buitenruimte ca. 10 m², externe berging ca. 35 m², de inhoud bedraagt ca. 530 m³ en het perceeloppervlak 260 m². Omgeving: Herkenbosch maakt deel uit van de gemeente Roerdalen en heeft ruim 4000 inwoners. Het dorp is gelegen in een landelijke en groene woonomgeving langs rivier de Roer en Nationaal Park de Meinweg met haar vele wandel- en fietsroutes. Herkenbosch beschikt over meer dan voldoende voorzieningen zoals een basisschool, supermarkt, diverse winkels, een huisartsenpraktijk, apotheek, een tandartspraktijk, restaurants, cafés, een dorpshuis, diverse (sport)verenigingen, een golfbaan en tal van recreatiemogelijkheden. Herkenbosch ligt op circa 10 kilometer van de stad Roermond met zijn uitgebreide maasplassen, tal van winkels en terrasjes in de fraaie historische binnenstad en het Designer Outlet Center. Het Bourgondische Maastricht en het Zuid-Limburgse heuvelland maar ook Venlo, Eindhoven en grote Duitse steden als Düsseldorf, Keulen en Aken zijn eveneens goed bereikbaar.
| Referentienummer | 212 |
| Vraagprijs | € 385.000,- k.k. |
| Status | Verkocht onder voorbehoud |
| Aanvaarding | In overleg |
| Laatste wijziging | Woensdag 19 november 2025 |
| Type object | Woonhuis, eengezinswoning, hoekwoning |
| Soort bouw | Bestaande bouw |
| Bouwperiode | 1964 |
| Dakbedekking | Bitumen Dakpannen |
| Type dak | Samengesteld |
| Isolatievormen | Dakisolatie HR-glas Muurisolatie Spouwmuren Vloerisolatie |
| Perceeloppervlakte | 260 m² |
| Woonoppervlakte | 125 m² |
| Woonkameroppervlakte | 39 m² |
| Keukenoppervlakte | 10 m² |
| Inhoud | 530 m³ |
| Oppervlakte overige inpandige ruimten | 24 m² |
| Oppervlakte externe bergruimte | 35 m² |
| Oppervlakte gebouwgebonden buitenruimte | 10 m² |
| Aantal bouwlagen | 3 (en 1 kelder) |
| Aantal kamers | 6 (waarvan 4 slaapkamers) |
| Aantal badkamers | 1 (en 1 apart toilet) |
| Ligging | Aan rustige weg In woonwijk Open ligging |
| Type | Achtertuin |
| Hoofdtuin | Ja |
| Oriëntering | Zuiden |
| Heeft een achterom | Ja |
| Staat | Goed onderhouden |
| Energielabel | A |
| CV ketel | Nefit HR combiketel |
| Warmtebron | Gas |
| Bouwjaar | 2023 |
| Combiketel | Ja |
| Eigendom | Eigendom |
| Aantal parkeerplaatsen | 1 |
| Warm water | CV-ketel |
| Verwarmingssysteem | Airconditioning Centrale verwarming |
| Keukenvoorzieningen | Inbouwapparatuur |
| Badkamervoorzieningen | Douche Ligbad Toilet Wastafel Wastafelmeubel |
| Parkeergelegenheid | Vrijstaande stenen garage |
| Heeft airco | Ja |
| Heeft een rookkanaal | Ja |
| Glasvezelaansluiting aanwezig | Ja |
| Tuin aanwezig | Ja |
| Heeft een garage | Ja |
| Heeft rolluiken | Ja |
| Heeft schuur/berging | Ja |
| Heeft een schuifpui | Ja |
| Heeft zonnepanelen | Ja |
| Kadastrale aanduiding | Melick en Herkenbosch A 3737 |
| Perceeloppervlakte | 260 m² |
| Omvang | Geheel perceel |
| Eigendomsituatie | Eigen grond |