Beschrijving
Welkom op Julianalaan 40, een vrijstaand geschakelde woning met een grote garage en een tuin met veel privacy. De woning is gelegen in een rustige woonomgeving nabij de dagelijkse voorzieningen.
Met een slaapkamer en een kleine badkamer op de begane grond is de woning levensloopbestendig te gebruiken maar daarmee is dit huis ook perfect voor gezinnen met opgroeiende kinderen en doorstromers die op zoek zijn naar ruimte, comfort en gemak. De fraaie L-vormige woonkamer en de keuken op de begane grond en de slaapkamers, de 2e badkamer en een 2e keuken op de verdiepingen bieden genoeg ruimte voor iedereen en maakt de woning ook geschikt voor dubbele bewoning.
Met een woonoppervlakte van 142 m² biedt deze woning voldoende ruimte. De kelder en de grote garage van 32 m² bieden voldoende ruimte voor opslag, werk- of hobbyruimte De tuin is volledig omheind en hier kun je volop genieten van het buitenleven en heerlijk ontspannen.
Indeling
Begane grond:
De entree geeft toegang tot de voordeur en de hal. Vanuit de hal met meterkast en trap naar de 1e verdieping zijn de toiletruimte en de woonkamer bereikbaar. De L-vormige ensuite-woonkamer (ca. 38 m²) is voorzien van een tegelvloer, een kachel en openslaande deuren een knusse binnenplaats. Aansluitend aan de woonkamer is de keuken (ca. 16 m²) gelegen welke beschikt over veel lichtinval door de grote lichtkoepels. De keuken beschikt over een keukenopstelling met apparatuur (keramische kookplaat, afzuigkap, magnetron, koelkast) en voldoende werk- en kastruimte. Via het portaal met tegelvloer is de badkamer en de slaapkamer bereikbaar. De badkamer is voorzien van een inloopdouche, vaste wastafel en een designradiator. De slaapkamer (ca. 15 m²) is voorzien van een tegelvloer en een schuifpui naar de tuin.
De garage is ca. 32 m² groot en biedt tal van mogelijkheden voor werk, hobby of opslag. De garage is voorzien van elektra- en wateraansluiting, een kantelpoort, een loopdeur naar de binnenplaats, een loopdeur naar de tuin en is binnenwerks 2,90 meter hoog.
Eerste verdieping
1e verdieping:
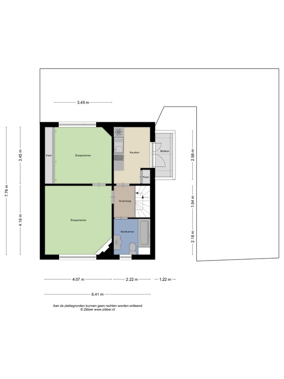
Op de eerste verdieping bevinden zich 2 slaapkamers, een badkamer en een keuken. De slaapkamers zijn afgewerkt met een laminaatvloer zijn respectievelijk circa 17 en 14 m² groot. De voormalige derde slaapkamer is voorzien van een keukenopstelling, een muurkast en heeft toegang tot het balkon. De badkamer is voorzien van een ligbad-/douchecombinatie, badkamermeubel met wastafel en een toilet.
Tweede verdieping
2e verdieping:
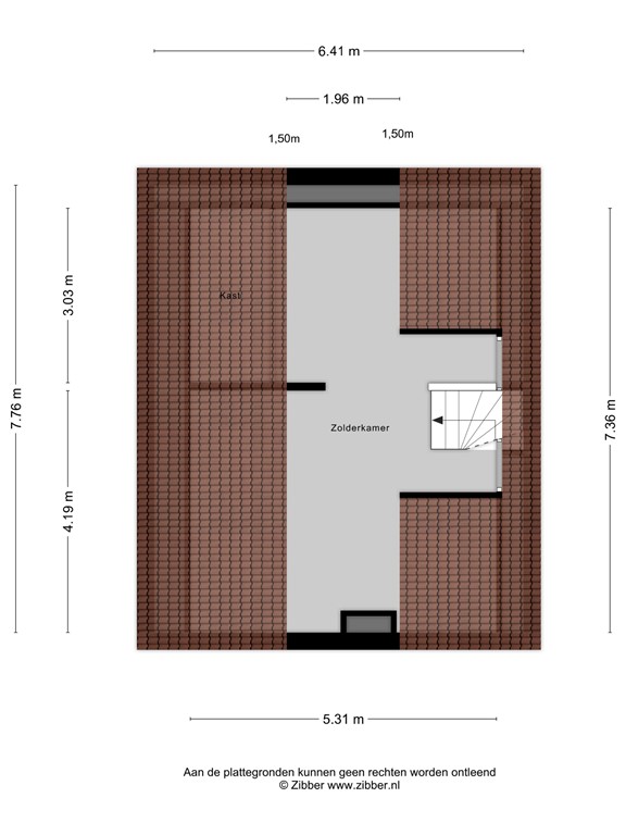
Middels een vaste trap is de tweede verdieping bereikbaar en hier bevindt zich een ruime zolderkamer. De zolderkamer (ca. 20 m²) is voorzien van een zeilvloer, een dakkapel en praktische bergkasten.
Overige verdiepingen
Kelder:
Praktische provisiekelder (ca. 9 m²) met tegelvloer en c.v.-opstelling;
Tuin
Tuin:
De op het zuiden georiënteerde achtertuin is geheel omheind, biedt veel privacy en is voorzien van een terras, gazon en beplanting.
Bijzonderheden
Algemeen:
Deze vrijstaand geschakelde woning is oorspronkelijk gebouwd in 1965 en is in de loop der jaren aan- en verbouwd. De woning is voorzien van kunststof en houten kozijnen met dubbel glas, een HR combiketel en heeft een energielabel . Het woonoppervlak bedraagt ca. 142 m², de overige inpandige ruimte ca. 61 m², de inhoud ca. 755 m³ en het perceeloppervlak bedraagt 290 m².
Omgeving:
Posterholt maakt met haar buurtschappen de Borg, de Holst en de Varst deel uit van de gemeente Roerdalen en heeft circa 4000 inwoners. Het dorp is gelegen in een landelijke en groene woonomgeving. Posterholt beschikt over meer dan voldoende voorzieningen zoals een basisschool met kinderopvang, een supermarkt, een bakker, een drogist en diverse andere winkels, een huisartsenpraktijk, een tandartspraktijk, apotheek, diverse horeca gelegenheden en tal van sport- en recreatievoorzieningen en verenigingen. Posterholt heeft goede aansluitingen op de diverse provinciale wegen richting Noord- en Zuid-Limburg alsook naar Duitsland. Tenslotte ben je in circa 10 autominuten in Roermond, met haar meer dan complete voorzieningenniveau.
Plattegronden
178760398_1588569_julia_begane_grond_first_design_20251105_86454e.jpg
178760398_1588569_julia_eerste_verdiepi_first_design_20251105_7d2719.jpg
178760398_1588569_julia_zolder_first_design_20251105_097f58.jpg
178760398_1588569_julia_kelder_first_design_20251105_521db2.jpg