Beschrijving
Welkom op Graeterhofweg 9, een sfeervolle vrijstaande jaren 30-woning die helemaal voldoet aan de moderne eisen van comfort en stijl. Gelegen in het hart van Boukoul temidden van landerijen, bos en natuur is dit de ideale woning voor mensen die op zoek zijn naar comfort en gemak in een schitterende omgeving.
Met een slaapkamer op de begane grond is de woning levensloopbestendig te gebruiken maar daarmee is dit huis ook perfect voor gezinnen met opgroeiende kinderen en doorstromers die op zoek zijn naar comfort en gemak. Met een woonoppervlakte van 123 m² biedt deze woning voldoende ruimte voor het hele gezin.
Het perceel heeft een oppervlakte van 285 m² en het grootste gedeelte van de tuin is gelegen op het Westen. Hier kun je volop genieten van het buitenleven en heerlijk ontspannen in de middag- en avond zon. De oprit biedt parkeer op eigen terrein.
Klaar om jouw nieuwe droomhuis te vinden? Deze prachtige en kleurrijke woning in Boukoul wacht op jou! Maak snel een afspraak voor een bezichtiging en wie weet wordt dit binnenkort wel jouw nieuwe thuis.
Indeling
Begane grond:
De overdekte entree geeft toegang tot de voordeur en de hal. Vanuit de hal met meterkast en trap naar de 1e verdieping zijn de kelder en de keuken bereikbaar. De open keuken beschikt over veel lichtinval door de fijne raampartij met zicht op de tuin. De keuken is voorzien van een moderne keukenopstelling met apparatuur (inductiekookplaat met afzuiging, oven, vaatwasser, koelkast) en voldoende werk- en kastruimte. De fraaie woonkamer is ruim van opzet (ca. 35 m²) en heeft veel lichtinval door de raam aan de voorzijde en de openslaande deuren aan de achterzijde naar de tuin. In de praktische bijkeuken bevinden zich de witgoedaansluitingen, de toiletruimte en een deur naar de tuin. De toiletruimte is voorzien van een wandcloset met fonteintje. De slaapkamer op de begane grond is voorzien van een laminaatvloer en hoog plafond en een deur met toegang naar de tuin.
De begane grond is, met uitzondering van de slaapkamer, voorzien van een gietvloer met vloerwarming.
Eerste verdieping
1e verdieping:
Op de eerste verdieping bevinden zich de fraaie overloop, 2 slaapkamers en de moderne badkamer. De overloop en slaapkamers zijn afgewerkt met een plankenvloer en de slaapkamers zijn respectievelijk circa 12 en 11 m² groot. De moderne en complete badkamer (ca. 8 m²) is voorzien van een ligbad, grote inloopdouche, badkamermeubel met twee wastafels, wandcloset en een designradiator.
Tweede verdieping
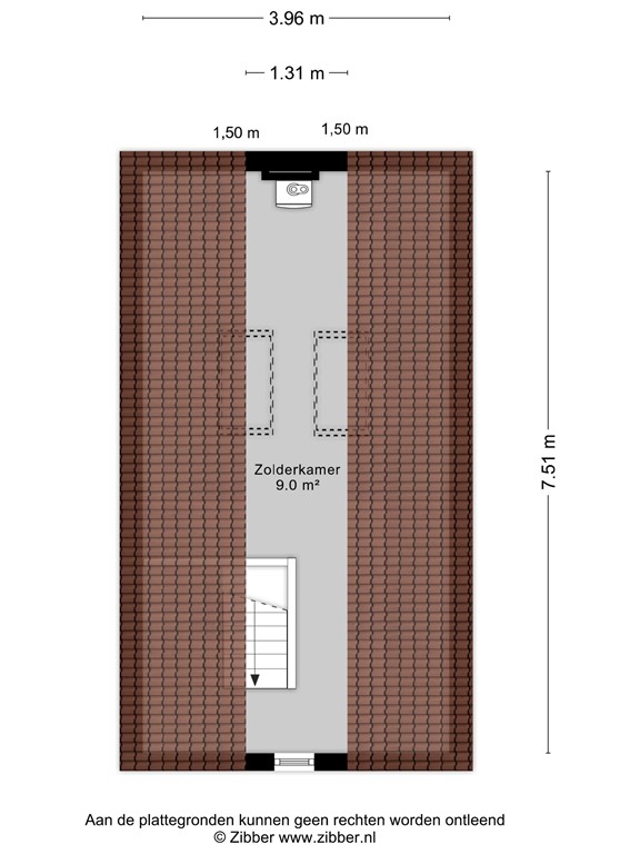
2e verdieping:
Middels een vaste trap is de tweede verdieping bereikbaar welke in gebruik is als bergzolder. De zolder is voorzien van twee fijne dakramen en hier is ook de opstelplaats van de c.v.-ketel.
Overige verdiepingen
Kelder:
Praktische provisieruimte;
Tuin
Tuin:
Het grootste gedeelte van de tuin is gelegen op het westen waardoor je hier heerlijk kunt genieten van de middag- en avond zon. De tuin is voorzien van gazon, bestrating en een houten tuinberging met overkapping. Vanuit de woonkamer is er toegang tot de bestrate en geheel omheinde patiotuin welke gelegen is achter de woning.
Bijzonderheden
Algemeen:
Deze sfeervolle en kleurrijke jaren 30-woning is vanaf 2018 gemoderniseerd, verkeert in een prima staat van onderhoud en is gelegen in een fijne en rustige woonomgeving. De woning is voorzien van dakisolatie, houten kozijnen met HR++ beglazing, een HR combiketel (2018), 6 zonnepanelen en heeft een energielabel .
Het woonoppervlak bedraagt ca. 123 m², de overige inpandige ruimte ca. 21 m², de inhoud ca. 534 m³ en het perceeloppervlak bedraagt 285 m².
Omgeving:
Deze woning is gelegen in het pittoreske Boukoul, een sfeervol kerkdorp met een eigen basisschool, omgeven door prachtige natuur en op korte afstand van Swalmen en Roermond. De omgeving biedt tal van mogelijkheden voor wandel- en fietsliefhebbers, terwijl u binnen enkele minuten de levendige stad Roermond bereikt, met zijn uitgebreide winkel- en horeca-aanbod. Swalmen zelf biedt alle dagelijkse voorzieningen, zoals supermarkten, scholen en sportfaciliteiten. De A73 is binnen enkele autominuten bereikbaar.
Plattegronden
182035822_1625746_graet_begane_grond_first_design_20260210_8b070d.jpg
182035822_1625746_graet_eerste_verdiepi_first_design_20260210_e90a1c.jpg
182035822_1625746_graet_tweede_verdiepi_first_design_20260210_4d71b2.jpg
182035822_1625746_graet_kelder_first_design_20260210_e29950.jpg
182035822_1625746_graet_berging_first_design_20260210_c1bc2d.jpg