Beschrijving
Welkom op Beukenlaan 2. Wanneer je op zoek bent naar een bijzonder woonhuis, een fijne- en rustige locatie en heel veel leefruimte, dan is dit gegarandeerd jouw nieuwe "thuis"
Deze vrijstaande woning met inpandige dubbele garage en tuin is gelegen in een rustige woonomgeving nabij de dagelijkse voorzieningen in het dorp en het fraaie buitengebied.
Met een woonoppervlak van maar liefst 283 m² en de overige inpandige ruimte van 83 m² biedt deze woning meer dan voldoende ruimte voor het hele gezin. De fraaie woonkamer met veel tuincontact, de ruime keuken, de 4 grote slaapkamers, de ruime zolderkamer en de twee badkamers op de verdieping bieden genoeg plek voor iedereen en de grote zolder is perfect voor het opbergen van spullen.
De dubbele garage en de tuinberging bieden genoeg ruimte voor stalling en opslag van spullen maar zijn ook zeer geschikt voor de uitoefening van een hobby. Het perceel heeft een oppervlakte van 825 m², waarvan het grootste gedeelte bestemd is als achtertuin. Hier kun je volop genieten van het buitenleven en heerlijk ontspannen in de zon.
Klaar om jouw nieuwe droomhuis te vinden? Deze prachtige woning in Vlodrop wacht op jou! Maak snel een afspraak voor een bezichtiging en wie weet wordt dit binnenkort wel jouw nieuwe thuis.
Indeling
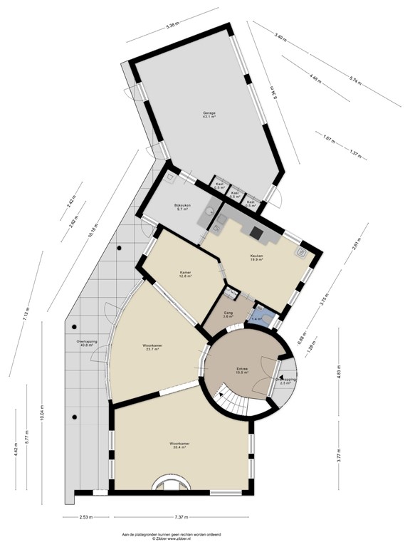
Begane grond:
De overdekte entree geeft toegang tot de dubbele voordeur en de hal. Vanuit de ruime ronde hal met trap naar de 1e verdieping zijn de toiletruimte, de meterkast, de woonkamer en de keuken bereikbaar.
De fraaie woonkamer is ruim van opzet (ca. 59 m²), voorzien van een haardpartij en heeft veel tuincontact en lichtinval door de grote raampartijen en de tuindeuren naar het overdekt terras. Aansluitend aan de woonkamer ligt een middels glazen schuifdeuren afgescheiden kamer welke momenteel in gebruik is als kantoorruimte. De keuken (ca. 20 m²) beschikt eveneens over veel lichtinval door de aanwezige ramen en is voorzien van een keurige keukenopstelling met apparatuur (keramische kookplaat, afzuigkap, oven, magnetron, vaatwasser, koelkast) en voldoende werk- en kastruimte. In de praktische bijkeuken bevinden zich de witgoedaansluitingen en een deur naar de tuin. Het woongedeelte is voorzien van een doorlopende tegelvloer met vloerverwarming.
De inpandige dubbele garage (ca. 43 m²) is voorzien van een twee elektrisch bedienbare poorten, een loopdeur naar de oprit en naar de tuin, verwarming en bergkasten.
Eerste verdieping
1e verdieping:
Op de eerste verdieping bevinden zich een grote overloop met vide, 4 slaapkamers, een hobbykamer twee badkamers en een apart toilet. De overloop en slaapkamers zijn afgewerkt met tapijt. De slaapkamers zijn respectievelijk circa 29, 14, 13 en 13 m² groot en de hobbykamer circa 28 m². De grootste slaapkamer is voorzien van een garderoberuimte met doorloop naar de badkamer. Deze badkamer is circa 20 m² groot en voorzien van een hoekbad, een douche en een dubbele wastafel. De tweede badkamer is voorzien van een douche en een wastafel.
Tweede verdieping
2e verdieping:
Middels een vlizotrap is de zolder (ca. 37 m²) bereikbaar. Hier bevindt de c.v.-opstelling.
Tuin
Tuin:
De op het zuidoosten georiënteerde achtertuin biedt veel privacy en is een fijne plek voor mensen die op zoek zijn naar ruimte en rust. De tuin is voorzien van een terras, gazon en borders met beplanting. De tuin is geheel omheind en voorzien van een tuinberging.
Bijzonderheden
Algemeen:
Deze vrijstaande woning verkeert in een prima staat van onderhoud en is gelegen in een fijne woonomgeving nabij de voorzieningen. De woning is gebouwd in 1992 en is geheel geïsoleerd, voorzien van kunststof kozijnen met isolerende beglazing, een HR ketel en heeft een energielabel C. Het woonoppervlak bedraagt ca. 283 m², de overige inpandige ruimte ca. 83 m², de gebouw gebonden buitenruimte ca. 43 m², externe berging ca. 11 m², de inhoud bedraagt ca. 1360 m³ en het perceeloppervlak 825 m².
Omgeving:
Vlodrop maakt met haar buurtschappen Etsberg, Rothenbach en Vlodrop Station deel uit van de gemeente Roerdalen en heeft ruim 2300 inwoners. Het dorp is gelegen in een landelijke en groene woonomgeving langs rivier de Roer en Nationaal Park de Meinweg met haar vele wandel- en fietsroutes. Vlodrop beschikt over voldoende voorzieningen zoals een basisschool, kinderopvang, supermarkten, diverse winkels, tuincentra, een huisartsenpraktijk, een tandartspraktijk, restaurants, cafés, een dorpshuis, een sporthal, een buitenzwembad en diverse (sport)verenigingen. Vlodrop ligt op circa 10 kilometer van de stad Roermond met zijn uitgebreide maasplassen, tal van winkels en terrasjes in de fraaie historische binnenstad en het Designer Outlet Center met meer dan 180 winkels en diverse restaurants. Het Bourgondische Maastricht en het Zuid-Limburgse heuvelland maar ook Venlo, Eindhoven en grote Duitse steden als Düsseldorf, Keulen en Aken zijn eveneens goed bereikbaar.
Plattegronden
182675548_1626521_beuke_begane_grond_first_design_20260316_3a75c9.jpg
182675548_1626521_beuke_eerste_verdiepi_first_design_20260316_30d6e4.jpg
182675548_1626521_beuke_zolder_first_design_20260316_53d52c.jpg
182675548_1626521_beuke_berging_first_design_20260316_0d9536.jpg