Beschrijving
Deze fijne hoekwoning is perfect voor starters en doorstromers die op zoek zijn naar een fijne plek om thuis te komen. De woning is gelegen in een rustige woonomgeving tegenover een groenvoorziening met speeltuintje en nabij de dagelijkse voorzieningen.
De doorzon woonkamer, de aparte keuken, de 3 ruime slaapkamers en de badkamer bieden genoeg ruimte voor iedereen en op zolder is er voldoende bergruimte.
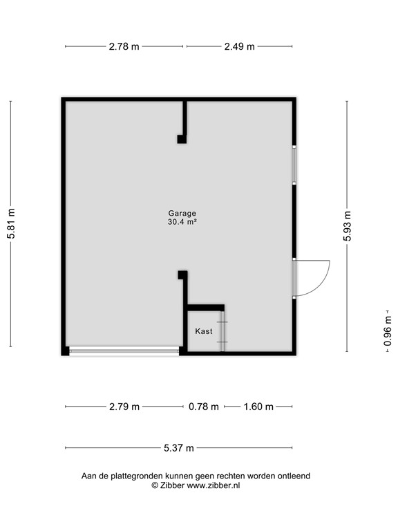
De ruime garage van circa 30 m² en de handige berging naast de woning bieden genoeg plek voor stalling en opslag van spullen maar zijn ook zeer geschikt voor de uitoefening van een hobby. Het perceel heeft een oppervlakte van 256 m², waarvan een groot gedeelte bestemd is als achtertuin. Hier kun je volop genieten van het buitenleven onder de overkapping maar ook heerlijk ontspannen in de zon.
Indeling
Begane grond:
De entree geeft toegang tot de voordeur en de hal. Vanuit de hal met laminaatvloer, meterkast, bergkast en trap naar de 1e verdieping zijn het toilet en de keuken bereikbaar. De keuken met laminaatvloer is voorzien van een keukenopstelling met apparatuur (gaskookplaat, afzuigkap, oven, koelkast) en biedt voldoende werk- en kastruimte. Een loopdeur geeft toegang tot de overkapping en de tuin. De doorzon woonkamer (ca. 27,5 m²) is voorzien van een laminaatvloer, een deur naar het overdekt terras en heeft veel lichtinval door de grote ramen aan de voor- en achterzijde en het extra raam in de zijgevel.
Eerste verdieping
1e verdieping:
Op de verdieping bevinden zich de overloop, 3 slaapkamers en de badkamer. De overloop en de slaapkamers zijn afgewerkt met een laminaatvloer. De slaapkamers zijn respectievelijk ca. 13, 13 en 8 m² groot en de kleinste slaapkamer is voorzien van een muurkast. De badkamer is voorzien van een ligbad/douchecombinatie, toilet, een wastafel en een designradiator.
Tweede verdieping
2e verdieping:
Middels een vlizotrap is de zolder bereikbaar. Hier bevindt zich de c.v.-opstelling (Vaillant HR combiketel 2024).
Tuin
Perceel:
De woning is gelegen op een fijn hoekperceel met aan de achterzijde de oprit met toegang tot de garage. De ruime garage (ca. 30 m²) is voorzien van een elektrische poort, een smeerput, een grondwaterpomp en hier bevindt zich ook de witgoedaansluiting. De berging (ca. 10 m²) naast de woning biedt voldoende plek voor opslag van tuinspullen.
De tuin is geheel omheind, heeft een prima bezonning en is voorzien van een overdekt terras, kunstgras en borders met beplanting. De tuin is achterom bereikbaar middels de een poort en via de garage.
Bijzonderheden
Algemeen:
Deze hoekwoning is gebouwd in 1969 en is altijd netjes onderhouden. De woning is gelegen in een rustige en kindvriendelijke woonomgeving nabij een groenvoorziening met speelveldje, nabij de dagelijkse voorzieningen en nabij het fraaie groene buitengebied
De woning is voorzien van spouwmuurisolatie, kunststof kozijnen met isolerende beglazing, rolluiken, een HR combiketel en heeft energielabel C.
Het woonoppervlak bedraagt ca. 90 m², overige inpandige ruimte ca. 16 m², gebouw gebonden buitenruimte ca. 16 m², externe berging ca. 41 m², de inhoud bedraagt ca. 380 m³ en het perceeloppervlak 256 m².
Omgeving:
Vlodrop maakt met haar buurtschappen Etsberg, Rothenbach en Vlodrop Station deel uit van de gemeente Roerdalen en heeft ruim 2300 inwoners. Het dorp is gelegen in een landelijke en groene woonomgeving langs rivier de Roer en Nationaal Park de Meinweg met haar vele wandel- en fietsroutes. Vlodrop beschikt over voldoende voorzieningen zoals een basisschool, kinderopvang, supermarkten, diverse winkels, tuincentra, een huisartsenpraktijk, een tandartspraktijk, restaurants, cafés, een dorpshuis, een sporthal, een buitenzwembad en diverse (sport)verenigingen. Vlodrop ligt op circa 10 kilometer van de stad Roermond met zijn uitgebreide maasplassen, tal van winkels en terrasjes in de fraaie historische binnenstad en het Designer Outlet Center met meer dan 180 winkels en diverse restaurants. Het Bourgondische Maastricht en het Zuid-Limburgse heuvelland maar ook Venlo, Eindhoven en grote Duitse steden als Düsseldorf, Keulen en Aken zijn eveneens goed bereikbaar.
Plattegronden
183790993_1638029_de_ee_begane_grond_first_design_20260327_621e8d.jpg
183790993_1638029_de_ee_eerste_verdiepi_first_design_20260327_50b916.jpg
183790993_1638029_de_ee_zolder_first_design_20260327_64ed83.jpg
183790993_1638029_de_ee_garage_first_design_20260327_1d49a0.jpg