Beschrijving
Welkom op Eikenlaan 10, een goed onderhouden vrijstaand woonhuis dat helemaal voldoet aan de moderne eisen van comfort en stijl. Wanneer je op zoek bent naar een instapklaar woonhuis, een fijne- en rustige locatie, een uitstekend niveau van onderhoud en genoeg leefruimte, dan is dit gegarandeerd jouw nieuwe "thuis"
Deze vrijstaande woning met inpandig bereikbare garage en fraaie onderhoudsvriendelijke tuin is gelegen op een perceel van 310 m² en door de hoekligging heb je veel privacy. De woning ligt nabij de dagelijkse voorzieningen in het dorp en nabij het fraaie buitengebied.
Met een woonoppervlakte van 141 m² biedt deze woning voldoende ruimte voor het hele gezin.
De fraaie woonkamer met open keuken, de 3 grote slaapkamers en de badkamer op de verdieping en de zolderkamer op de tweede verdieping bieden genoeg ruimte voor iedereen.
In de sfeervol aangelegde tuin kun je volop genieten van het buitenleven en heerlijk ontspannen onder de overkapping en in de zon. Dankzij de inpandige garage met zolder, de kelder, de buitenberging en de oprit is er genoeg parkeerplek en bergruimte.
Klaar om jouw nieuwe droomhuis te vinden? Deze mooie en goed onderhouden vrijstaande woning wacht op jou! Maak snel een afspraak voor een bezichtiging en wie weet wordt dit binnenkort wel jouw nieuwe thuis.
Indeling
Begane grond:
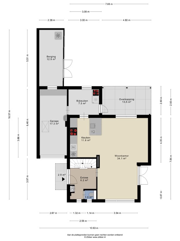
De overdekte entree geeft toegang tot de voordeur en de hal. Vanuit de hal met meterkast, trap naar de 1e verdieping en trap naar de kelder is de toiletruimte en de woonkamer bereikbaar. De toiletruimte is modern afgewerkt en voorzien van een wandcloset.
De woonkamer (ca. 34 m²) heeft veel lichtinval en is voorzien van openslaande deuren naar het terras aan de zijkant van de woning en een airco om te verwarmen en te koelen.
De open keuken beschikt over een moderne keukenopstelling met apparatuur (inductiekookplaat met afzuiging, oven, koelkast, vaatwasser) en voldoende werk- en kastruimte.
In de praktische bijkeuken (ca. 7,5 m²) bevinden zich de witgoedaansluitingen en een loopdeur naar de tuin. Het woongedeelte is voorzien van een doorlopende tegelvloer.
De inpandig bereikbare garage (ca. 17 m²) is voorzien van een tegelvloer, elektrische sectionaalpoort, een wasbak en een handige zolderberging van ca. 10 m²).
Eerste verdieping
1e verdieping:
Op de eerste verdieping bevinden zich de overloop met bergkast, 3 slaapkamers en de badkamer. De slaapkamers zijn respectievelijk circa 14, 12 en 7 m² groot. De grootste slaapkamer is voorzien van een inbouwkast en een airco en slaapkamer twee heeft toegang tot het balkon.
De badkamer is voorzien van vloerverwarming en beschikt over een inloopdouche, wandcloset, een dubbele wastafel en een designradiator.
Tweede verdieping
2e verdieping:
Middels een vaste trap is de tweede verdieping bereikbaar. Hier bevindt zich de overloop met c.v.-opstelling en zolder. Deze ruimte is voorzien van een dakraam en praktische bergkasten.
Overige verdiepingen
Kelder:
Praktische provisiekelder (ca. 8 m²) met tegelvloer en toegang naar de kruipruimte.
Tuin
Tuin:
De fraai aangelegde achtertuin heeft een prima bezonning en biedt veel privacy door de aanwezige leibomen. De tuin is geheel omheind, onderhoudsvriendelijk en voorzien van een fijne overkapping en een extra berging. De woning is achterom bereikbaar.
Bijzonderheden
Algemeen:
Deze instapklare vrijstaande woning verkeert in een goede staat van onderhoud en is gelegen in een fijne woonomgeving nabij de voorzieningen. De woning is oorspronkelijk gebouwd in 1977 en is in de loop der jaren gemoderniseerd. Zo is bijvoorbeeld in 2023 het dak vernieuwd.
De woning is voorzien van spouwmuur- en dakisolatie, voorzien van kunststof kozijnen met isolerende beglazing, rolluiken, een HR combiketel en heeft een energielabel C.
Het woonoppervlak bedraagt ca. 141 m², de overige inpandige ruimte ca. 38 m², gebouw gebonden buitenruimte ca. 18 m², de externe berging ca. 13 m², de inhoud ca. 660 m³ en het perceeloppervlak bedraagt circa 310 m².
Omgeving:
Vlodrop maakt met haar buurtschappen Etsberg, Rothenbach en Vlodrop Station deel uit van de gemeente Roerdalen en heeft ruim 2300 inwoners. Het dorp is gelegen in een landelijke en groene woonomgeving langs rivier de Roer en Nationaal Park de Meinweg met haar vele wandel- en fietsroutes. Vlodrop beschikt over voldoende voorzieningen zoals een basisschool, kinderopvang, supermarkten, diverse winkels, tuincentra, een huisartsenpraktijk, een tandartspraktijk, restaurants, cafés, een dorpshuis, een sporthal, een buitenzwembad en diverse (sport)verenigingen. Vlodrop ligt op circa 10 kilometer van de stad Roermond met zijn uitgebreide maasplassen, tal van winkels en terrasjes in de fraaie historische binnenstad en het Designer Outlet Center met meer dan 180 winkels en diverse restaurants. Het Bourgondische Maastricht en het Zuid-Limburgse heuvelland maar ook Venlo, Eindhoven en grote Duitse steden als Düsseldorf, Keulen en Aken zijn eveneens goed bereikbaar.
Plattegronden
183069313_1631268_eiken_begane_grond_first_design_20260307_61d8fd.jpg
183069313_1631268_eiken_eerste_verdiepi_first_design_20260307_c48131.jpg
183069313_1631268_eiken_tweede_verdiepi_first_design_20260307_874d64.jpg
183069313_1631268_eiken_kelder_first_design_20260307_cfb34e.jpg
183069313_1631268_eiken_begane_grond_tu_first_design_20260307_383cbc.jpg