Beschrijving

Deze speels geschakelde woning met serre, inpandig bereikbare garage en tuin is gelegen in een rustige woonomgeving tegenover een groenvoorziening en nabij de dagelijkse voorzieningen. 
Deze fijne woning is perfect voor starters en jonge gezinnen die comfortabel willen wonen op een plek waar alles dichtbij is. De ruime woonkamer met aansluitend de serre, de aparte keuken, 3 slaapkamers en de badkamer op de verdieping bieden voldoende ruimte voor iedereen. De garage zorgt voor extra mogelijkheden en bergruimte. In de fijne achtertuin kun je genieten van het buitenleven en heerlijk ontspannen in de zon.

Indeling

Begane grond:
De voordeur geeft toegang tot de hal. Vanuit de hal met laminaatvloer, meterkast, en trap naar de 1e verdieping zijn de woonkamer, de toiletruimte en de garage bereikbaar. De toiletruimte is voorzien van een wandcloset met fonteintje. De woonkamer is ruim van opzet (ca. 35 m²), heeft veel lichtinval en is voorzien van een airco en een houtkachel. Aansluitend aan de woonkamer bevindt zich de serre welke in gebruik is als eetkamer. De serre is ca. 9 m² groot en voorzien van een schuifpui en openslaande deuren naar de tuin. De keuken (ca. 11 m²) is voorzien van een keurige keukenopstelling met apparatuur (5-pits gaskookplaat, afzuigkap, combimagnetron, vaatwasser) en beschikt over voldoende werk- en kastruimte. De begane grond is voorzien van een doorlopende laminaatvloer. 
De inpandig bereikbare garage is voorzien van een elektrische sectionaalpoort, een loopdeur naar de tuin en hier bevinden zich ook de witgoedaansluitingen. De garage is geschikt als stallingsruimte, hobbyruimte maar kan ook omgeturnd worden tot bijvoorbeeld een slaapkamer of werkkamer.

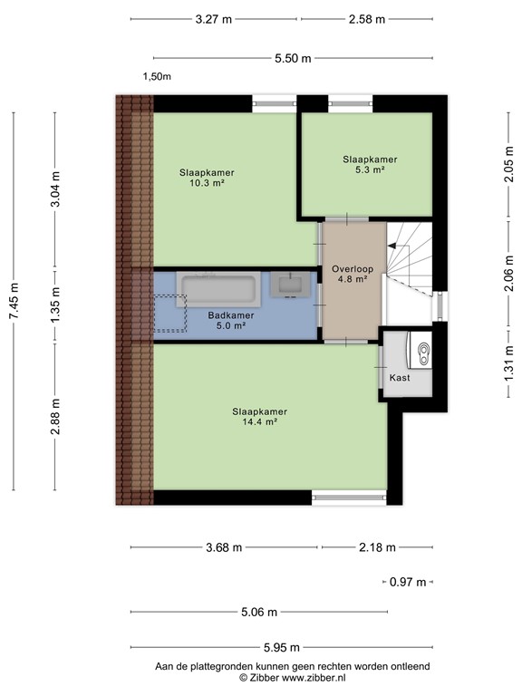
Eerste verdieping

1e verdieping:
Op de verdieping bevinden zich de overloop, 3 slaapkamers, de badkamer en een bergkast met de c.v.-opstelling. De overloop en de slaapkamers zijn afgewerkt met een doorlopende laminaatvloer en de slaapkamers zijn respectievelijk ca. 14, 10 en 5 m² groot. De badkamer is voorzien van een ligbad-/douchecombinatie en een wastafel. In de bergkast bevindt zich de c.v.-opstelling (2021) en de mechanische ventilatie (2021).

Tuin

Perceel:
De woning is gelegen op een perceel van 249 m² en is achterom bereikbaar. De oprit biedt parkeergelegenheid op eigen terrein en geeft toegang tot de garage en de voordeur. 
De onderhoudsvriendelijk aangelegde achtertuin heeft een prima bezonning en is voorzien van bestrating en een handige tuinberging.

Bijzonderheden

Algemeen:
Deze goed onderhouden halfvrijstaande woning is gebouwd in 1985 en is gelegen in een rustige en kindvriendelijke woonomgeving tegenover een groenvoorziening en nabij de dagelijkse voorzieningen. De woning is voorzien van spouwmuur- en dakisolatie, isolerende beglazing, heteluchtverwarming (2021 huur), een HR ketel voor warmwater (2021 huur), 12 zonnepanelen en heeft energielabel D.  
Het woonoppervlak bedraagt ca. 109 m², overige inpandige ruimte ca. 21 m², de inhoud bedraagt ca. 458 m³ en het perceeloppervlak 249 m². 

Omgeving:
Vlodrop maakt met haar buurtschappen Etsberg, Rothenbach en Vlodrop Station deel uit van de gemeente Roerdalen en heeft ruim 2300 inwoners. Het dorp is gelegen in een landelijke en groene woonomgeving langs rivier de Roer en Nationaal Park de Meinweg met haar vele wandel- en fietsroutes. Vlodrop beschikt over voldoende voorzieningen zoals een basisschool, kinderopvang, supermarkten, diverse winkels, tuincentra, een huisartsenpraktijk, een tandartspraktijk, restaurants, cafés, een dorpshuis, een sporthal, een buitenzwembad en diverse (sport)verenigingen. Vlodrop ligt op circa 10 kilometer van de stad Roermond met zijn uitgebreide maasplassen, tal van winkels en terrasjes in de fraaie historische binnenstad en het Designer Outlet Center met meer dan 180 winkels en diverse restaurants. Het Bourgondische Maastricht en het Zuid-Limburgse heuvelland maar ook Venlo, Eindhoven en grote Duitse steden als Düsseldorf, Keulen en Aken zijn eveneens goed bereikbaar.

Kenmerken