Beschrijving
Welkom op Winkelweg 12, een vrijstaand woonhuis met aanbouw, garage , diverse bergingen en een grote tuin met veel privacy, gelegen in een rustige woonomgeving nabij de dagelijkse voorzieningen.
Met een slaapkamer en de mogelijkheid tot het realiseren van een badkamer op de begane grond is de woning levensloopbestendig te gebruiken maar daarmee is dit huis ook perfect voor gezinnen met opgroeiende kinderen en doorstromers die op zoek zijn naar ruimte, comfort en gemak. De L-vormige woonkamer, de ruime eetkamer, de aparte keuken en de 3 slaapkamers en badkamer op de verdieping bieden genoeg ruimte voor iedereen. De kelder en de zolder zorgen voor extra bergruimte.
Met een woonoppervlakte van 190 m² biedt deze woning voldoende ruimte voor iedereen. De garage en de diverse bergingen op het perceel bieden genoeg ruimte voor opslag, werk- of hobbyruimte. In de ruim 30 meter diepe achtertuin kun je volop genieten van het buitenleven en heerlijk ontspannen.
Indeling
Begane grond:
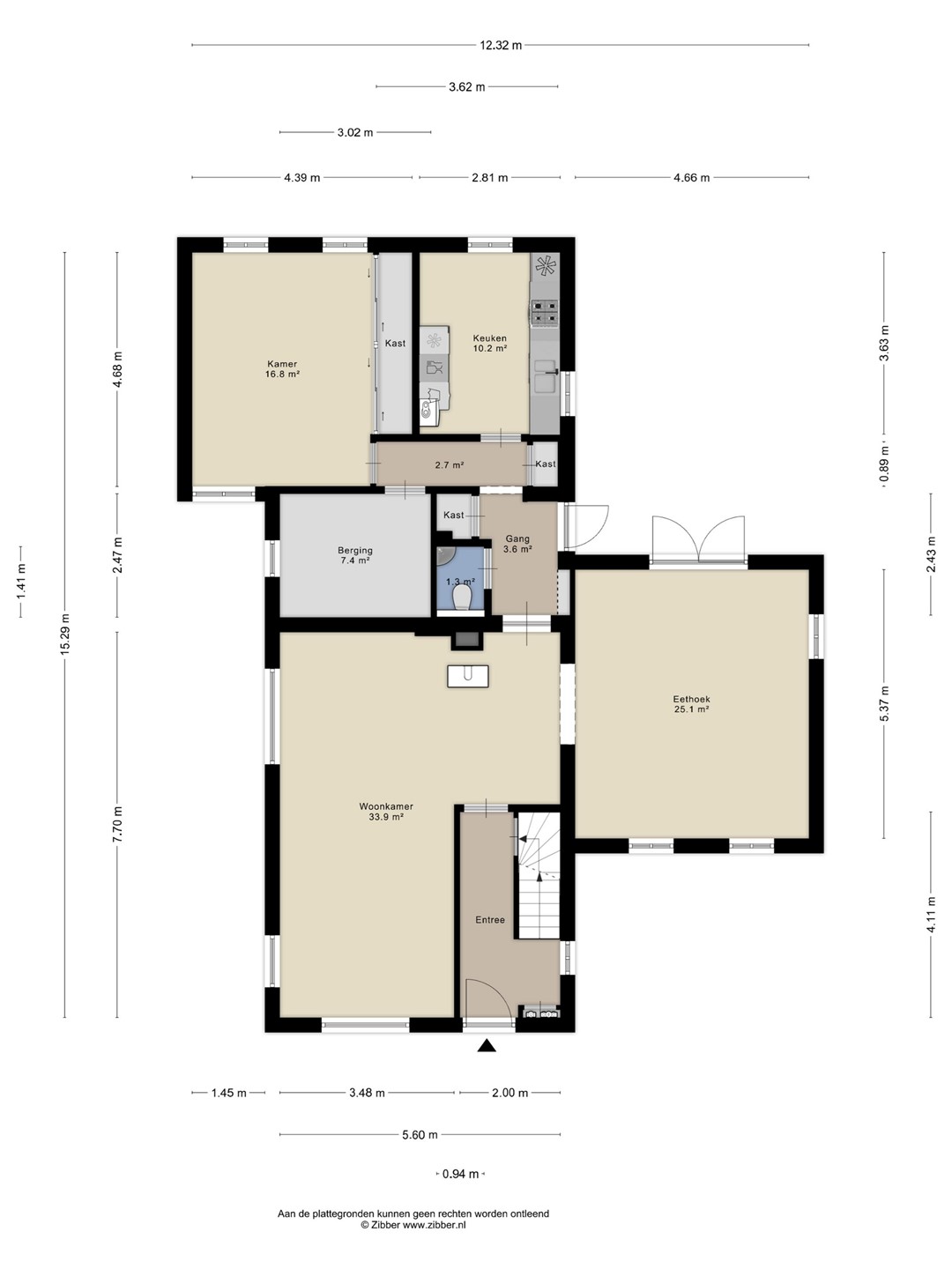
De entree geeft toegang tot de voordeur en de hal. Vanuit de hal met meterkast en trap naar de 1e verdieping zijn de kelder en de woonkamer bereikbaar. De L-vormige woonkamer (ca. 34 m²) is deels voorzien van een laminaatvloer en deels van een tegelvloer en een kachel. Aansluitend aan de woonkamer is de ruime eetkamer gelegen. De eetkamer is ca. 25 m² groot en voorzien van een massief Amerikaans eiken vloer en openslaande deuren naar het terras. Middels het portaal met tegelvloer, muurkasten en buitendeur is er toegang tot het toilet, de keuken, de slaapkamer en de berging.
De keuken (ca. 10 m²) beschikt over een eenvoudige keukenopstelling met apparatuur en voldoende werk- en kastruimte. Tevens bevinden zich hier de witgoedaansluitingen en de c.v.-opstelling.
De slaapkamer (ca. 17 m²) heeft veel lichtinval en een vaste kastenwand. In de berging is het leidingwerk aanwezig om een badkamer te realiseren.
Eerste verdieping
1e verdieping:
Op de eerste verdieping bevinden zich de overloop met toegang tot het dakterras, 3 slaapkamers, de badkamer en een berging. De ouderslaapkamer is ca. 21 m² groot en voorzien van inbouwkasten.
Slaapkamer 2 en 3 zijn respectievelijk ca. 11 en 10 m² groot en voorzien van een parketvloer. De badkamer is voorzien van een douche, toilet en vaste wastafel.
Tweede verdieping
2e verdieping:
Middels een vlizotrap is de zolder bereikbaar.
Overige verdiepingen
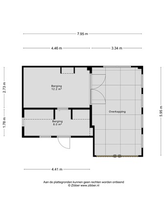
Kelder:
Praktische provisiekelder (ca. 8 m²) met tegelvloer;
Tuin
Perceel:
De oprit biedt parkeergelegenheid op eigen terrein en geeft toegang tot de garage en de tuin. De garage is ca. 17 m² groot en de achtergelegen berging ca. 15 m².
De ruim 30 meter diepe achtertuin biedt veel privacy, mede omdat er geen directe achterburen zijn, en is voorzien van een terras, gazon, bomen en beplanting. Achter in de tuin bevinden zich nog een hobbyruimte en een berging.
Bijzonderheden
Algemeen:
Deze vrijstaande woning is oorspronkelijk gebouwd omstreeks 1950 en is in de loop der jaren aan- en verbouwd. De woning is deels voorzien van dakisolatie en spouwmuurisolatie, kunststof en houten kozijnen met grotendeels dubbel glas, een HR combiketel en heeft een energielabel C .
Het woonoppervlak bedraagt ca. 190 m², de overige inpandige ruimte ca. 8 m², gebouw gebonden buitenruimte ca. 14 m², externe berging ca. 56 m², de inhoud bedraagt ca. 734 m³ en het perceeloppervlak bedraagt 1140 m².
Omgeving:
Posterholt maakt met haar buurtschappen de Borg, de Holst en de Varst deel uit van de gemeente Roerdalen en heeft circa 4000 inwoners. Het dorp is gelegen in een landelijke en groene woonomgeving. Posterholt beschikt over meer dan voldoende voorzieningen zoals een basisschool met kinderopvang, een supermarkt, een bakker, een drogist en diverse andere winkels, een huisartsenpraktijk, een tandartspraktijk, apotheek, diverse horeca gelegenheden en tal van sport- en recreatievoorzieningen en verenigingen. Posterholt heeft goede aansluitingen op de diverse provinciale wegen richting Noord- en Zuid-Limburg alsook naar Duitsland.
Tenslotte ben je in circa 10 autominuten in Roermond, met haar meer dan complete voorzieningenniveau.