Beschrijving
Karakteristiek vrijstaand woonhuis met aanbouw. overdekt terras, tuin en garage, gelegen in een rustige straat in de oude kern van Vlodrop. Deze woning mag met een woonoppervlak van 190 m² absoluut ruim worden genoemd en biedt door de vele vertrekken op de begane grond, de 5 slaapkamers en de badkamer op de verdieping, de kelder, de zolder en de garage vele mogelijkheden. Ben je op zoek naar een huis met karakter en veel ruimte waar je al je woonwensen in kwijt kunt en de mogelijkheid om alles helemaal naar eigen wens aan te passen? Dan is deze vrijstaande woning met karakter en geschiedenis in het hart van Vlodrop precies wat je zoekt!
Indeling
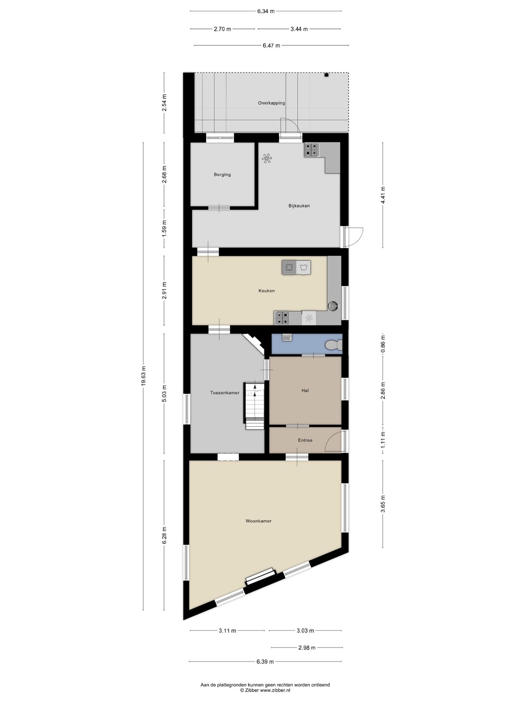
Begane grond:
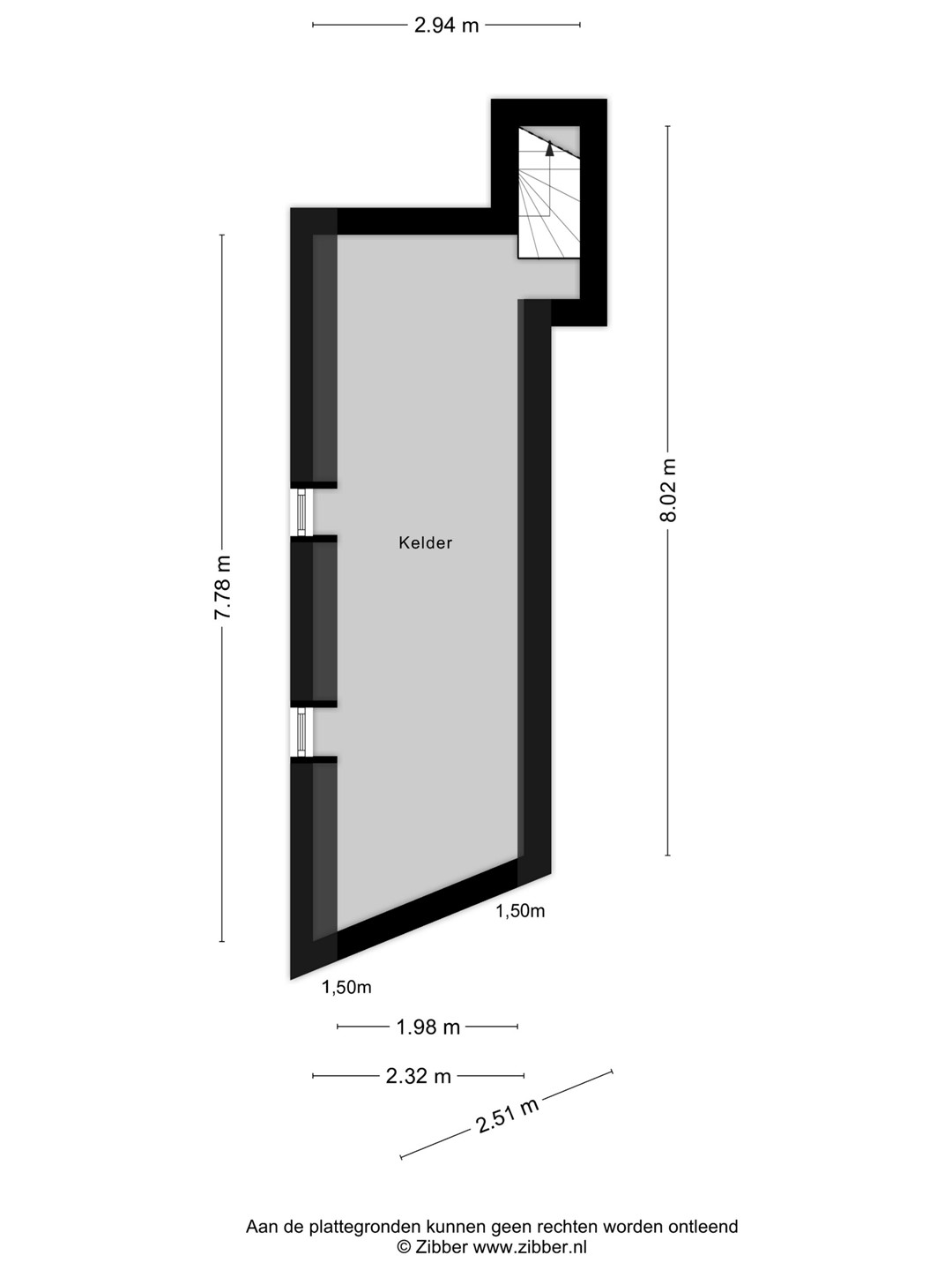
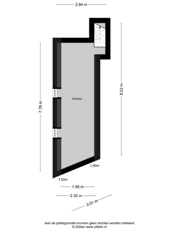
De entree geeft toegang tot de voordeur en de hal. Vanuit de hal zijn het toilet, de tussenkamer en de woonkamer bereikbaar. De woonkamer is ruim van opzet (ca. 34 m²), heeft veel lichtinval en is voorzien van een gashaard. Een leuk historisch feitje, de woonkamer heeft tot midden jaren ’70 dienst gedaan als dorpscafé. Via de tussenkamer met gashaard, meterkast, trap naar de eerste verdieping en trap naar de kelder is de keuken bereikbaar. De keuken (ca. 18 m²) is voorzien is van een keukenopstelling, witgoedaansluitingen en een gashaard. Vanuit de keuken is er toegang tot de bijkeuken (ca. 19 m²) en de inpandige berging. De bijkeuken is voorzien van een deur naar het overdekt terras en een deur naar de oprit.
Eerste verdieping
1e verdieping:
Op de verdieping bevinden zich de grote overloop, 5 slaapkamers en de badkamer. De slaapkamers zijn respectievelijk (ca. 16, 13, 10, 7,5 en 7 m²) groot. De badkamer (ca. 8 m²) is voorzien van een ligbad, douche en een wastafel. Middels een deur in de badkamer is er toegang tot het platte dak van de aanbouw.
Tweede verdieping
2e verdieping:
Mangat naar de vliering.
Tuin
Perceel:
De woning is gelegen op een perceel van 342 m². De tuin is onderhoudsvriendelijk aangelegd en is voorzien van bestrating, beplanting en een overkapping van ca. 16 m². De garage van ca. 18 m² voorzien van een elektrisch bedienbare sectionaalpoort.
Bijzonderheden
Algemeen:
Deze zeer ruime vrijstaande woning is gebouwd omstreeks 1918. De woning is gelegen in een van de oudste straten van Vlodrop en ademt sfeer en karakter. De woning is voorzien van hardhouten en kunststof kozijnen met isolerende beglazing, een boiler en heeft energielabel G. Het woonoppervlak bedraagt ca.190 m², de overige inpandige ruimte ca. 23 m², de inhoud ca. 795 m³ en het perceeloppervlak bedraagt circa 342 m².
Omgeving:
Vlodrop maakt met haar buurtschappen Etsberg, Rothenbach en Vlodrop Station deel uit van de gemeente Roerdalen en heeft ruim 2300 inwoners. Het dorp is gelegen in een landelijke en groene woonomgeving langs rivier de Roer en Nationaal Park de Meinweg met haar vele wandel- en fietsroutes. Vlodrop beschikt over voldoende voorzieningen zoals een basisschool, kinderopvang, supermarkten, diverse winkels, tuincentra, een huisartsenpraktijk, een tandartspraktijk, restaurants, cafés, een dorpshuis, een sporthal, een buitenzwembad en diverse (sport)verenigingen. Vlodrop ligt op circa 10 kilometer van de stad Roermond met zijn uitgebreide maasplassen, tal van winkels en terrasjes in de fraaie historische binnenstad en het Designer Outlet Center met meer dan 180 winkels en diverse restaurants. Het Bourgondische Maastricht en het Zuid-Limburgse heuvelland maar ook Venlo, Eindhoven en grote Duitse steden als Düsseldorf, Keulen en Aken zijn eveneens goed bereikbaar.