Beschrijving
Deze goed onderhouden halfvrijstaande woning met aanbouw, kelder, garage en tuin is gelegen in een rustige woonomgeving nabij een groenvoorziening met speelveldje en de dagelijkse voorzieningen.
Deze fijne gezinswoning is perfect voor starters en jonge gezinnen die comfortabel willen wonen op een plek waar alles dichtbij is. De L-vormige woonkamer, de aparte keuken, 3 slaapkamers en een badkamer op de verdieping en de zolderkamer bieden voldoende ruimte voor iedereen. De kelder en de garage zorgen voor extra bergruimte. In de fraai aangelegde achtertuin kun je genieten van het buitenleven en heerlijk ontspannen in de zon.
Indeling
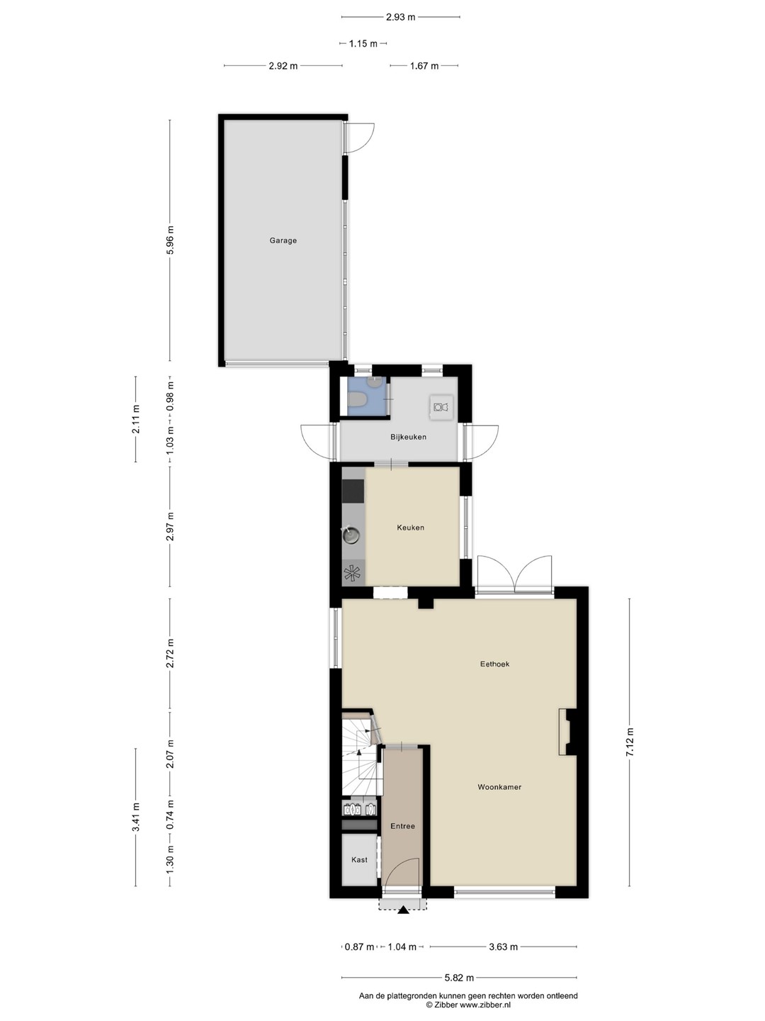
Begane grond:
De entree geeft toegang tot de voordeur en de hal. Vanuit de hal met tegelvloer, garderoberuimte, meterkast, en trap naar de 1e verdieping is de woonkamer bereikbaar. De L-vormige woonkamer is ruim van opzet (ca. 33 m²), heeft veel lichtinval mede door de openslaande deuren naar het terras en is voorzien van een tegelvloer met vloerverwarming.
De keuken (ca. 9 m²) is eveneens voorzien van een tegelvloer met vloerverwarming en een keukenopstelling met apparatuur (elektrische kookplaat, afzuigkap, oven, koelkast) en beschikt over voldoende werk- en kastruimte. Aansluitend aan de keuken is de bijkeuken (ca. 6 m²) gesitueerd. Deze is voorzien van een tegelvloer, de witgoedaansluitingen en loopdeuren naar de oprit en naar de tuin. Hier bevindt zich ook de toiletruimte welke voorzien is van een wandcloset met fonteintje.
Eerste verdieping
1e verdieping:
Op de verdieping bevinden zich de overloop, 3 slaapkamers en de badkamer. De slaapkamers zijn respectievelijk ca. 13, 10 en 5 m² groot en de twee grootste slaapkamers zijn beide voorzien van een muurkast. De badkamer is voorzien van een douche, een toilet en een wastafel.
Tweede verdieping
2e verdieping:
Middels een vaste trap is de tweede verdieping bereikbaar. Hier bevinden zich de overloop met c.v.-opstelling en de zolderkamer.
Overige verdiepingen
Kelder:
Praktische provisiekelder (ca. 7,5 m²)
Tuin
Perceel:
De woning is gelegen op een fijn perceel en is achterom bereikbaar. De oprit geeft toegang tot de garage van ca. 17 m². De onderhoudsvriendelijk aangelegde tuin heeft een prima bezonning en is voorzien van bestrating en borders met beplanting.
Bijzonderheden
Algemeen:
Deze goed onderhouden halfvrijstaande woning is oorspronkelijk gebouwd in 1966 en is in de loop der jaren aan- en verbouwd. De woning is gelegen in een rustige en kindvriendelijke woonomgeving nabij een groenvoorziening met speelveldje en nabij de dagelijkse voorzieningen. De woning is voorzien van spouwmuur- en dakisolatie, grotendeels voorzien van kunststof kozijnen met isolerende beglazing, rolluiken, een HR combiketel, 9 zonnepanelen en heeft energielabel C.
Het woonoppervlak bedraagt ca. 99 m², overige inpandige ruimte ca. 17 m², externe bergruimte ca. 17 m², de inhoud bedraagt ca. 413 m³ en het perceeloppervlak 230 m².
Omgeving:
Vlodrop maakt met haar buurtschappen Etsberg, Rothenbach en Vlodrop Station deel uit van de gemeente Roerdalen en heeft ruim 2300 inwoners. Het dorp is gelegen in een landelijke en groene woonomgeving langs rivier de Roer en Nationaal Park de Meinweg met haar vele wandel- en fietsroutes. Vlodrop beschikt over voldoende voorzieningen zoals een basisschool, kinderopvang, supermarkten, diverse winkels, tuincentra, een huisartsenpraktijk, een tandartspraktijk, restaurants, cafés, een dorpshuis, een sporthal, een buitenzwembad en diverse (sport)verenigingen. Vlodrop ligt op circa 10 kilometer van de stad Roermond met zijn uitgebreide maasplassen, tal van winkels en terrasjes in de fraaie historische binnenstad en het Designer Outlet Center met meer dan 180 winkels en diverse restaurants. Het Bourgondische Maastricht en het Zuid-Limburgse heuvelland maar ook Venlo, Eindhoven en grote Duitse steden als Düsseldorf, Keulen en Aken zijn eveneens goed bereikbaar.