Beschrijving
Deze fijne en goed onderhouden halfvrijstaande woning met carport, garage en terrasoverkapping is gelegen in een rustige woonomgeving nabij de dagelijkse voorzieningen. De woning beschikt o.a. over een doorzon woonkamer, fijne keuken, 3 slaapkamers, een badkamer, zonnepanelen, airco’s, kunststof kozijnen en heeft energielabel C.
De naastgelegen bedrijfshal wordt na de bouwvak met 7 meter vanaf de erfgrens ingekort en dit gedeelte wordt aangekleed met groen.
Indeling
Begane grond:
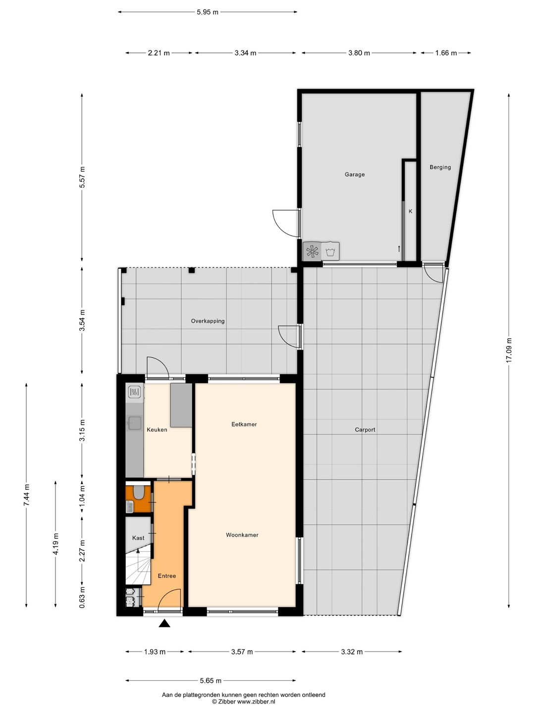
Via de onderhoudsvriendelijk aangelegde voortuin is de entree bereikbaar. Vanuit de hal met tegelvloer, meterkast, trapkast, en trap naar de 1e verdieping is de toiletruimte met wandcloset en fonteintje bereikbaar. De lichte doorzon woonkamer is voorzien van een tegelvloer en een airco die gebruikt kan worden om te koelen en te verwarmen. De keuken is voorzien van een fijne keukenopstelling met apparatuur (inductiekookplaat, afzuigkap, combimagnetron, vaatwasser en koelkast), voldoende werk- en kastruimte en een deur naar het overdekt terras.
Eerste verdieping
1e verdieping:
Op de verdieping bevinden zich de overloop met muurkast, 3 slaapkamers en de badkamer. De overloop en de slaapkamers zijn afgewerkt met een laminaatvloer. De grootste slaapkamer beschikt over een airco.
De badkamer is voorzien van een douche, wastafel in wandmeubel en een designradiator. In de muurkast is een toilet gerealiseerd.
Tweede verdieping
2e verdieping:
Middels een vlizotrap is de zolder met c.v.-opstelling bereikbaar.
Tuin
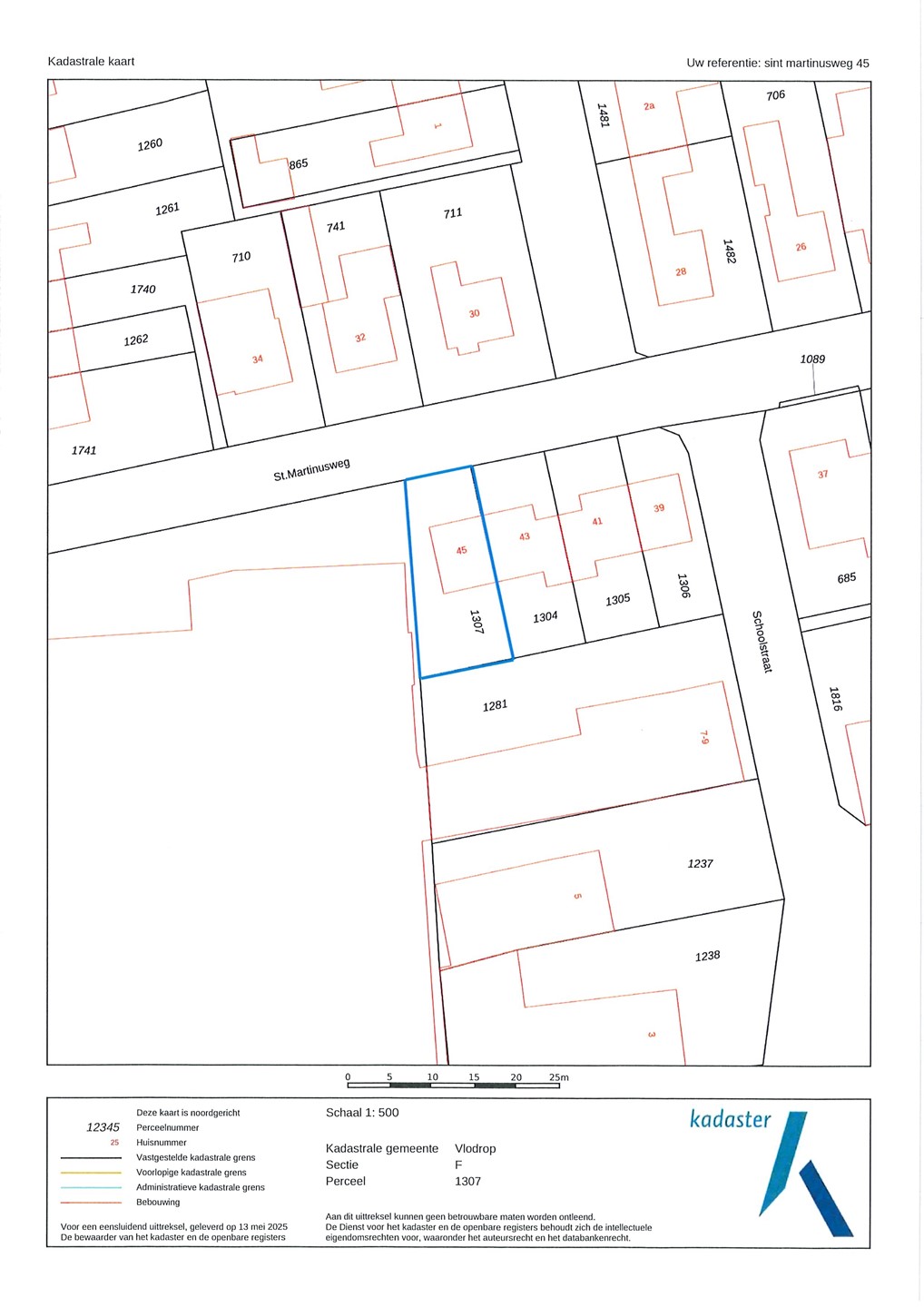
Perceel:
De woning is gelegen op een fijn perceel met aan de voorzijde de onderhoudsvriendelijke voortuin en de oprit met grote carport, garage en toegang tot de achterzijde van de woning. De oprit met carport bieden voldoende parkeergelegenheid op eigen terrein. De ruime garage beschikt over een elektrisch bedienbare poort en een loopdeur naar de tuin. Naast de garage is nog een kleine berging gerealiseerd. De onderhoudsvriendelijk aangelegde achtertuin is voorzien van een overkapping, bestrating en een border met beplanting. Door de ligging op het Zuiden heeft de tuin een prima bezonning en biedt veel privacy.
Bijzonderheden
Algemeen:
Deze fijne en goed onderhouden halfvrijstaande woning is gebouwd in 1972. De woning is gelegen in een rustige woonomgeving nabij dagelijkse voorzieningen en op loopafstand van het buitengebied.
De woning is voorzien van kunststof kozijnen met HR++ beglazing en rolluiken, 13 zonnepanelen, twee airco’s voor koelen en verwarmen, een gehuurde HR combiketel (huur dient door koper te worden overgenomen) en heeft energielabel C. Het woonoppervlak bedraagt ca. 85 m², overige inpandige ruimte ca. 17 m², gebouw gebonden buitenruimte ca. 66 m², externe berging ca. 21 m ², de inhoud bedraagt ca. 359 m³ en het perceeloppervlak 218 m².
Omgeving:
Vlodrop maakt met haar buurtschappen Etsberg, Rothenbach en Vlodrop Station deel uit van de gemeente Roerdalen en heeft ruim 2300 inwoners. Het dorp is gelegen in een landelijke en groene woonomgeving langs rivier de Roer en Nationaal Park de Meinweg met haar vele wandel- en fietsroutes. Vlodrop beschikt over voldoende voorzieningen zoals een basisschool, kinderopvang, supermarkten, diverse winkels, tuincentra, een huisartsenpraktijk, een tandartspraktijk, restaurants, cafés, een dorpshuis, een sporthal, een buitenzwembad en diverse (sport)verenigingen. Vlodrop ligt op circa 10 kilometer van de stad Roermond met zijn uitgebreide maasplassen, tal van winkels en terrasjes in de fraaie historische binnenstad en het Designer Outlet Center met meer dan 180 winkels en diverse restaurants. Het Bourgondische Maastricht en het Zuid-Limburgse heuvelland maar ook Venlo, Eindhoven en grote Duitse steden als Düsseldorf, Keulen en Aken zijn eveneens goed bereikbaar.